image/svg+xml Tyrone Village ® A LAKESHORE COMMUNITY

A Premier 55+ Manufactured Home Community in Tampa, Florida

Custom Homes

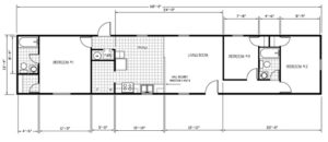
planA

Bookmark the permalink.

© 2026 Lakeshore Communities. All rights reserved.